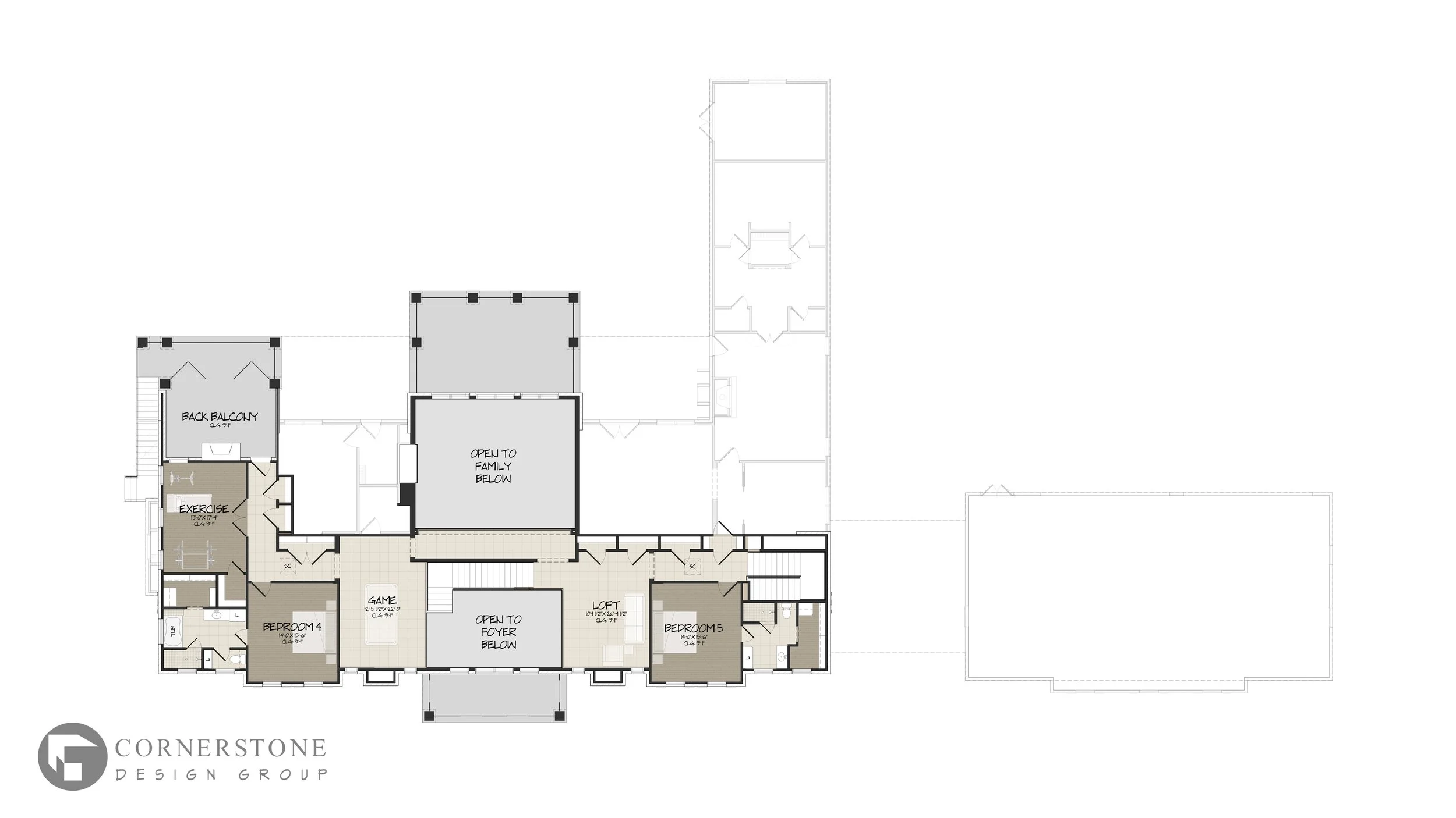
Features include: 5 Bedrooms, 5.5 Bathrooms, a 4 car garage, a tall entry foyer and family room, an open kitchen ad breakfast room, a primary bathroom with his & her vanities, a large primary closet with a center island, a large utility room, a large scullery, a Porte Cochere to the garage entry, a second floor loft with a game room and exercise room, a second floor balcony, and large front and back porches.
Additional Information
Length: 101’-6.5”
Width: 187’-0”
Maximum Ridge Height: 31’=8.5”
Garage Bays: 4
Garage Type: Front Entry
Date of Completion: November 2025

